Downpatrick
028 4461 3983
« Back to Search Results Status: For sale

89b Crawfordstown Road, Drumaness, Ballynahinch, BT24 8NA

Offers around £375,000
Site

Key Information

Status For sale
Price Offers around £375,000
Land type Building Site

Features

  • Superb elevated site with breathtaking views of Co.Down.
  • Spacious accommodation to include 2 reception rooms , an open plan kitchen area dining/family area, plus sun lounge and downstairs bathroom.
  • All 3 downstairs bedrooms are designed for en-suites , with the master bedroom also having a dressing room.
  • The ground floor additionally provides for a family area /study/ office , utility room, toilet area and integral garage.
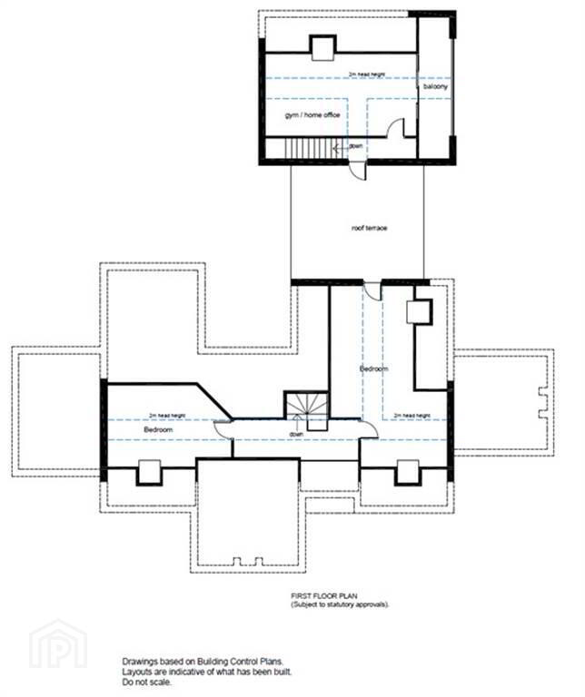
  • The first floor is integrated with a roof terrace which can access 3 further potential bedrooms.
  • Electricity , Mains water supply and CTD are all in place .
Fitzpatrick Estate Agents are delighted to bring to the market this magnificent, partially completed family home, set on circa 4.35 acres and nestled in the elevated, rolling drumlands of Co. Down.

This breathtaking location affords stunning 360-degree panoramic views of the surrounding countryside in a designated area of outstanding beauty.


The rural style dwelling itself has been completed to first fix level and has been constructed to high specifications throughout.


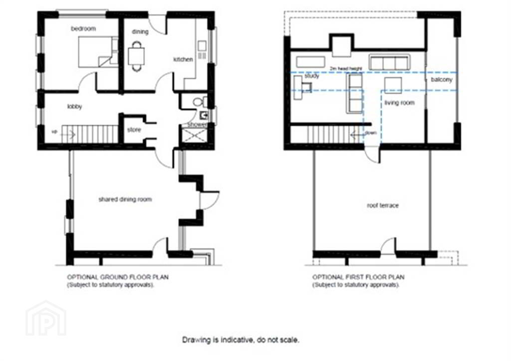
In addition to the first floor having the potential to provide 3 extra bedrooms, there is also excellent potential to reconfigure the layout and create (subject to the final statutory consents) a fully self- contained, separately accessed apartment or granny flat, which would be ideal for expanding families/ multigenerational living.

The property offers ample outside space to arrange parking, create landscaped gardens patio areas and design children's play zones.

This opportunity is for someone who has an appreciation of enduring beauty and the vision to make this house their own unique and magnificent home.

VIEWING IS STRICLY BY APPOINTMENT ONLY.

Contact Fitzpatrick Estate Agents on 028 4461 3983.

Ground Floor

ENTRANCE HALL:
LOUNGE:
OPEN PLAN KITCHEN/DINING/LIVING AREA
UTILITY ROOM:
SUN ROOM:
MASTER BEDROOM:
DRESSING ROOM AND ENSUITE
BEDROOM (2):
ENSUITE SHOWER ROOM:
BEDROOM (3):
ENSUITE SHOWER ROOM:
BATHROOM:

First Floor

Potential for a further 3 Bedrooms

Outside

INTEGRAL GARAGE:
Situated on a site of circa 4.35 acres and is accessed via a laneway from the main Crawfordstown Road

All local amenities can be easily accessed. Drumaness village is an approximately 3-minute drive and the towns of Ballynahinch, Downpatrick and Newcastle are close by, with both Lisburn and Belfast also within easy reach.